Jonathan Canetti
Architecture & Design
Projects
Press
About
Contact
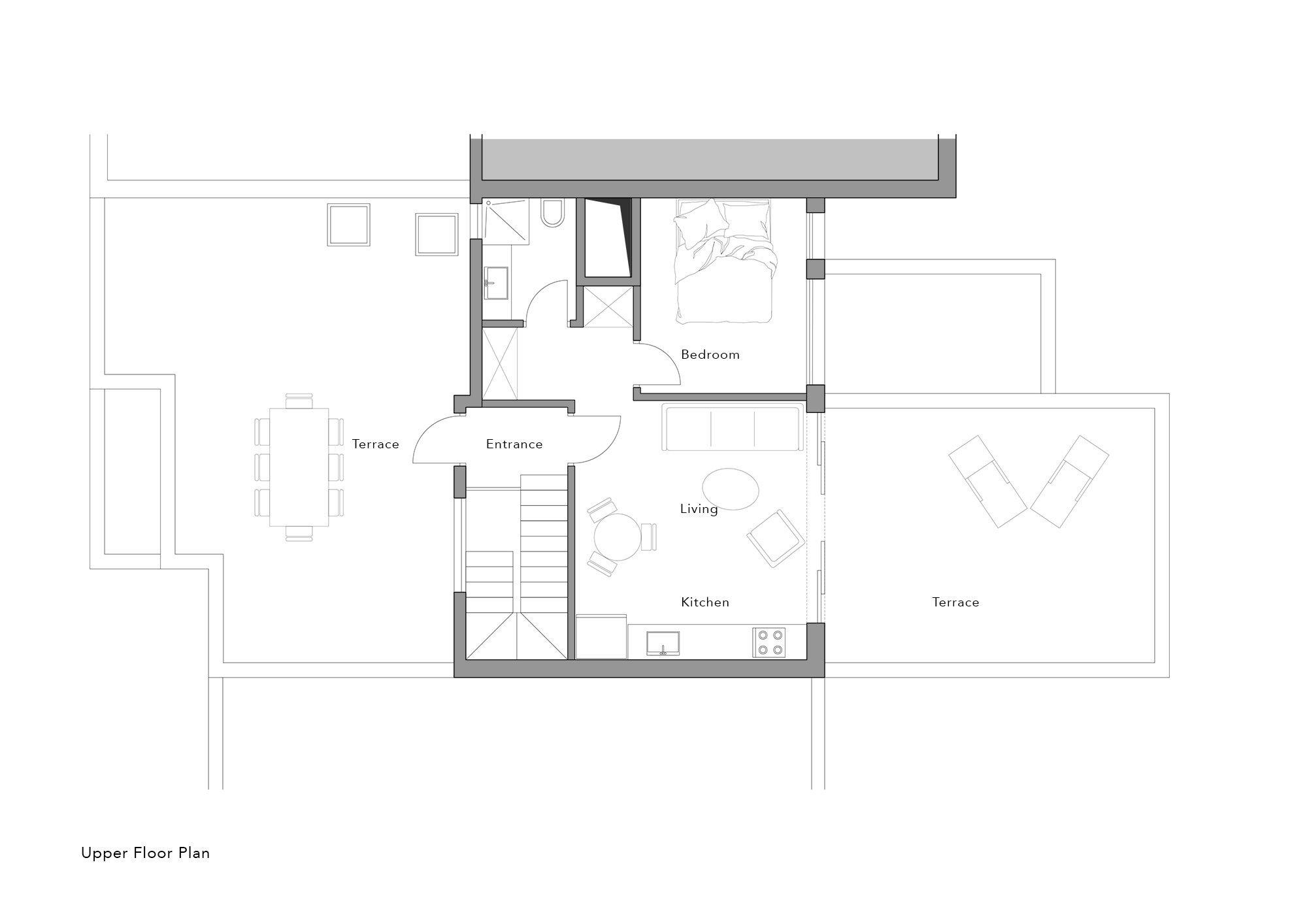
Ramat Hasharon Apartments
Ramat Hasharon, Israel
240 m
2
Addition of 2 floors and 2 apartments to an existing building.
Completed: 2018
R
ead more ︎
and more ︎
Photos by: Gidon Levin