Jonathan Canetti
Architecture & Design
Projects
Publications
About
Contact
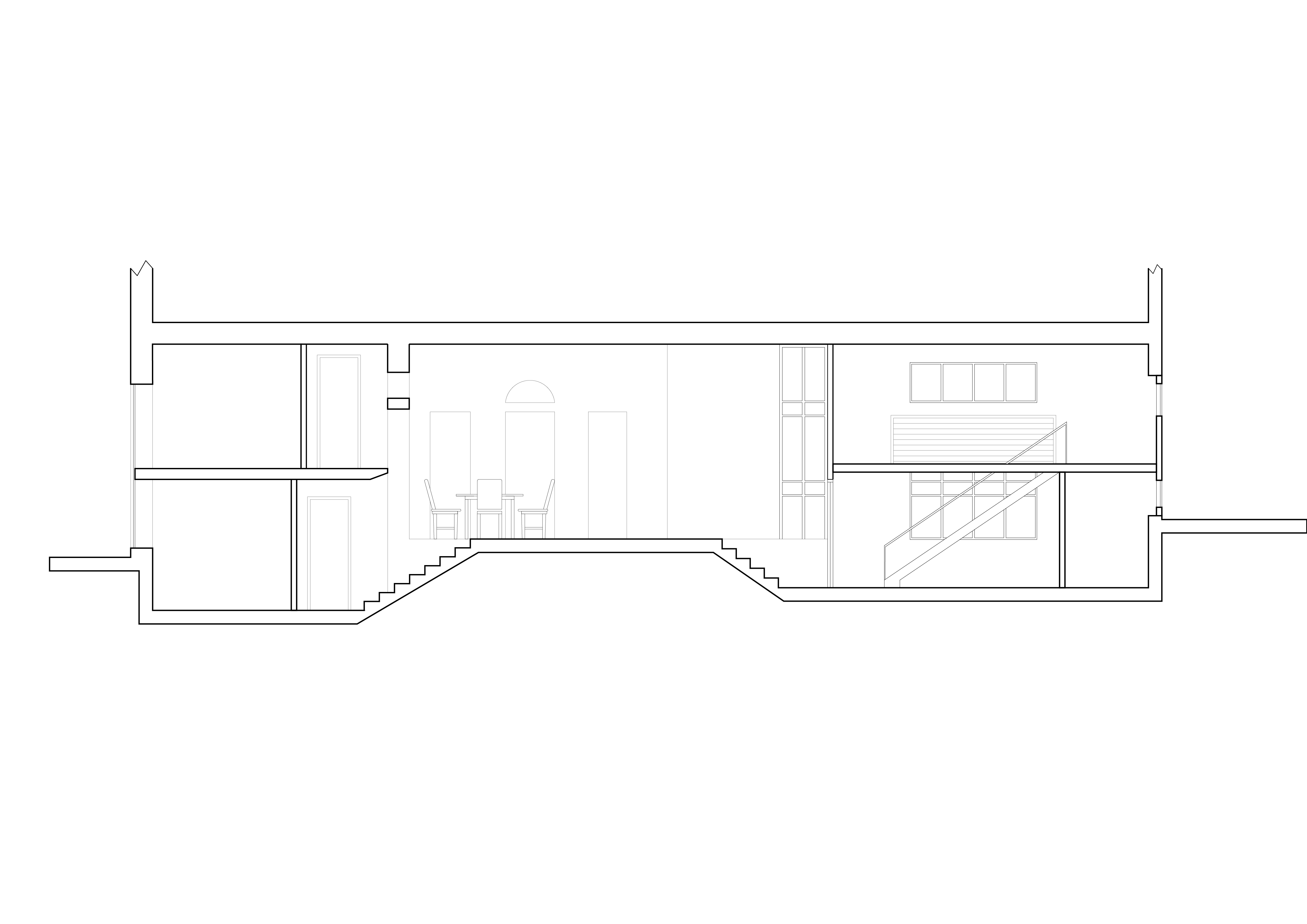
Tel Aviv House 02
Neve Tsedek, Tel Aviv, Israel
200 m
2
Renovation and preservation of an old stone house for a family of 6.
3 Bedrooms, 1 Guest Room, 1 Patio.
Completed: 2016
Read more ︎
and more ︎
Photos by: Gidon Levin