Jonathan Canetti
Architecture & Design
Projects
Press
About
Contact
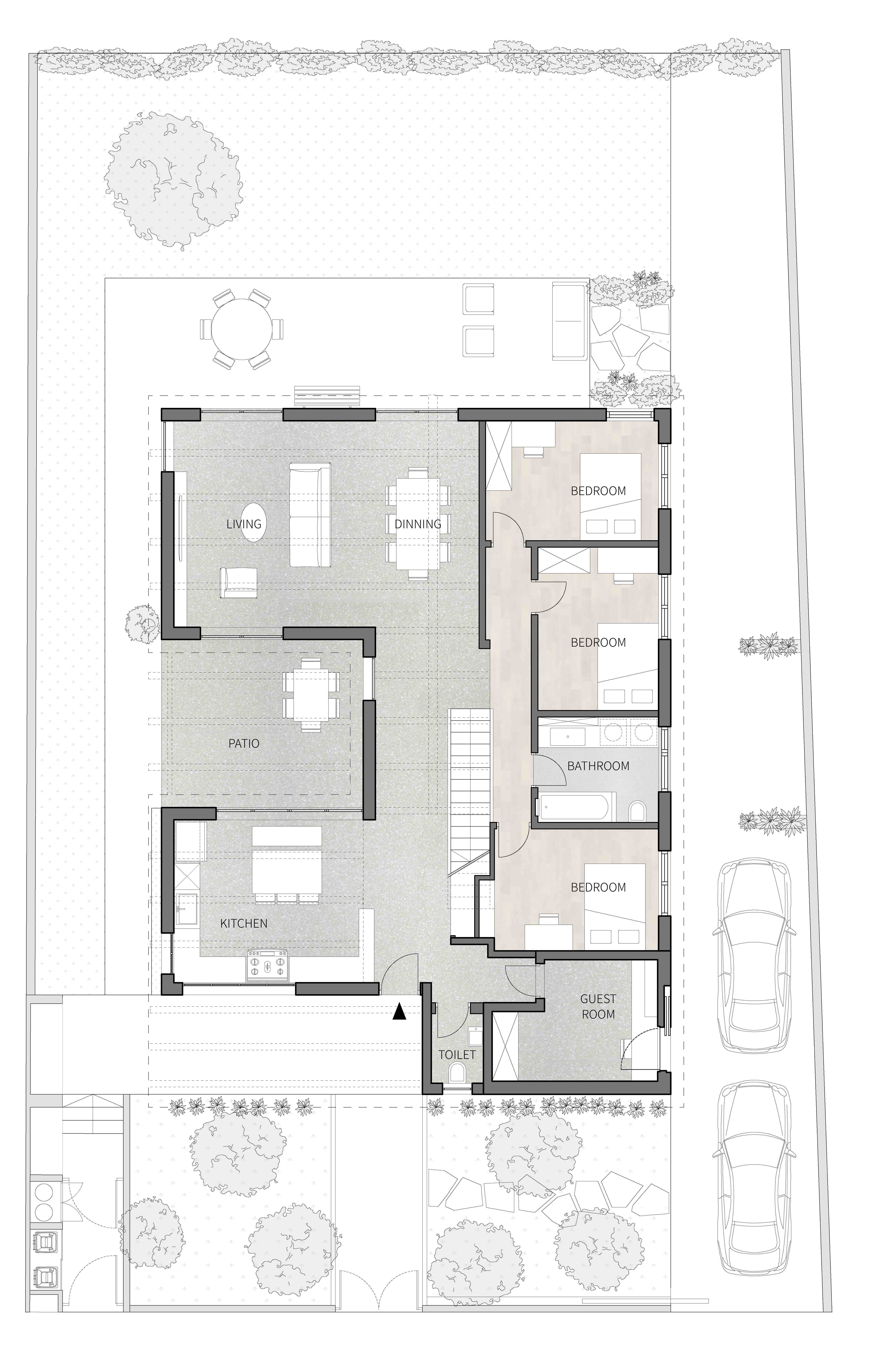
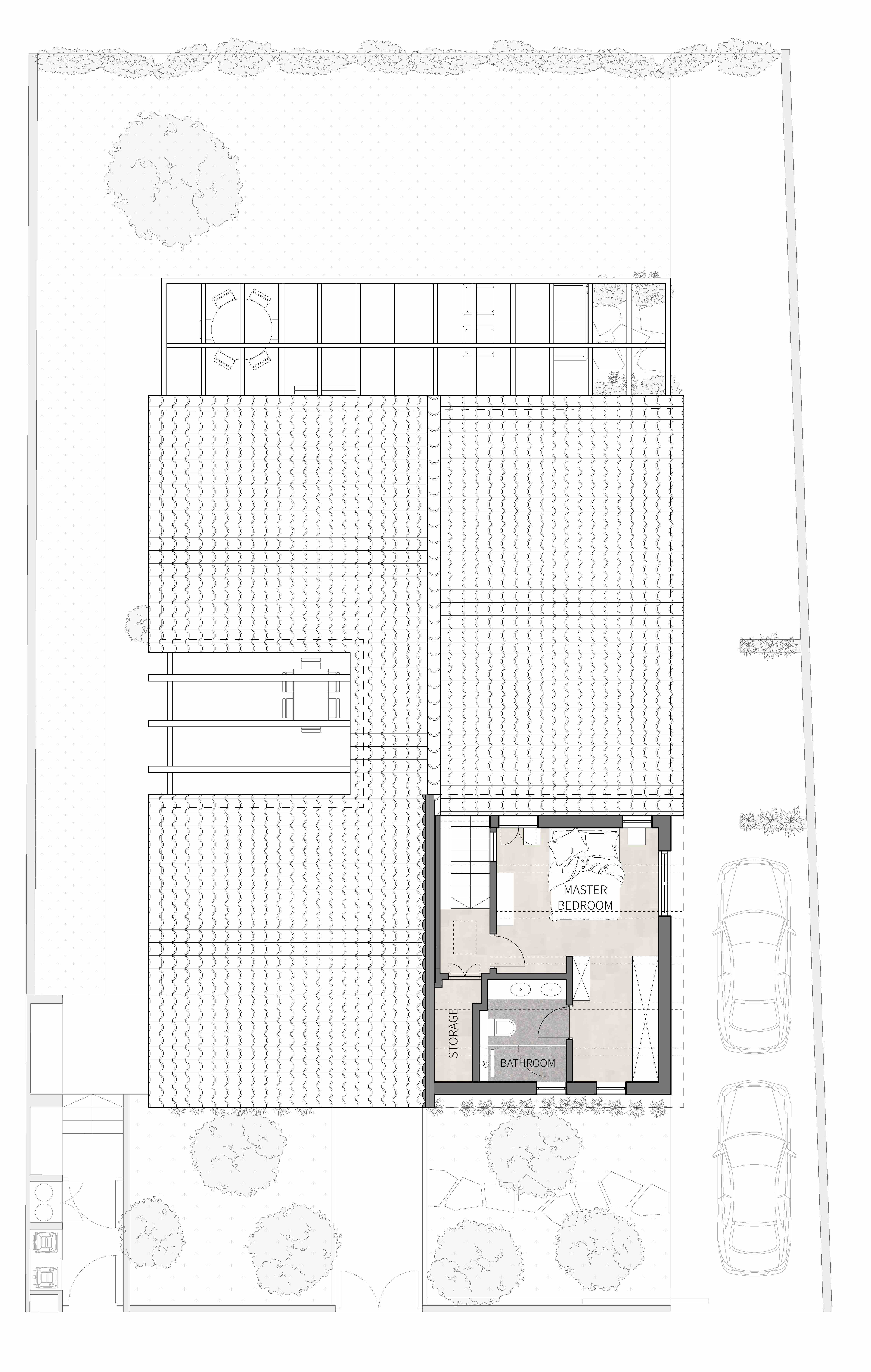
Tel Aviv House 03
Tsahala, Tel Aviv, Israel
200 m
2
Read more on:
Archdaily
Read more on:
Mako
Read more on:
Fineshmaker
Photos by: Ido Adan
.